您當前的位置:
來源:梵客家裝 關鍵詞: 1189 2021-10-12
小區名稱:東大街
裝修風格:簡歐風格
裝修類型:整裝
房屋類型:新房
裝修造價:25萬元(施工加主材)
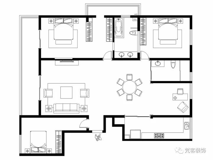
房屋戶型:4室2廳1廚2衛
建筑面積:200平米
設計師:張曉紅(梵客家裝)
部分材料信息:
地磚:歐神諾
墻漆:PPG大師
壁紙:特普麗
吊頂:歐斯寶
開關:西門子
櫥柜:銳意空間
衛浴:惠達
家具:美得林
裝修背景
本案例的業主是一位職場女性,喜歡奢華的歐式裝修,考慮到這套房子是一家三代五口同住,要滿足大家不同的需求,最終定位為簡歐風格。
業主對自己的裝修需求非常明確,因為空間大,裝修造價高,再加上業主要求高,所以向她推薦666整裝套餐,局部空間加以個性化設計和產品升級,以達到最完美的效果。
房型改動
次衛,衣帽間,書房
原戶型為四居室,次衛較小,所以在原始結構上做了調整,擴大了次衛的空間。
儲物空間相對較少,在主臥增加了衣帽間。
書房空間較小,設計了開放式書房,與餐廳并聯延展至客廳,敞開式空間顯得更加敞亮。

平面布置圖
材質亮點
簡歐風格很注意材質的運用,本案例中,大量運用了石膏線, 瓷磚,墻紙,軟包,地毯,體現了整個空間的精致高貴。
原房型格局有一些弊端,房間層高較矮。為了解決這一問題,設計師專門做了頂面處理,同時做了縱向石膏線裝飾,更具層次感,視覺上提升了空間高度。客廳吊頂使空間劃分方正,石膏線的裝飾使空間更有層次感和裝飾效果,因為面積比較大,不會顯得吊頂單薄,體現了歐式的富麗豪華。
由于家里老人喜歡瓷磚,所以房屋地面都鋪設了地磚,局部空間做了拼花造型,墻面采用護墻板加壁紙飾面,彰顯歐式的奢華。
墻紙和軟包不僅有裝飾作用,也烘托出整個裝修風格的氛圍。經典的團花圖案是歐式主流壁紙樣式,永不過時。
臥室鋪設地毯,但地毯和地面色差不宜太大,選擇大面積的歐式花紋地毯,主要是裝飾地面,提升舒適性。
簡歐風格的空間主要以白色、淡色為主,以暖色調加以協調。家具則是白色或深色都可以,但要成系列,風格統一。客廳、餐廳、門廳過道是一個相連的空間,為了區分空間,在地面和頂面做了造型區分。

家具宜選用現代感強烈的家具,簡單、抽象、明快、現代感強,家具的顏色偏向白色或流行色,使整個空間充滿強烈的西方傳統審美氣息。
業主最滿意的是電視背景墻的設計,簡約而不簡單,軟包裝飾的電視背景墻,低調奢華。

壁畫可選擇金屬框抽象畫或攝影作品,或西方藝術家的作品,營造濃郁的西方藝術氛圍,體現主人的文化涵養。條紋和碎花的壁紙在簡歐風格的家中也很常見。

水晶吊燈、壁燈,其造型都充滿西方風情,在簡歐風格的空間里,傳承著西方文化底蘊的壁燈靜靜泛著朦朧的燈光,浪漫之感油然而生。

布藝的面料和質感很重要,比如絲質面料的窗簾會顯得比較高貴。

人性化設計
在本案例中,最人性化的是引入了智能家居設計。業主平日生活充滿小資情調,設計師特別為她設計了背景音樂和燈光控制。平日,家人在客廳休息,有背景音樂烘托氛圍,溫馨浪漫;家里輔助光源較多,筒燈,燈帶,壁燈,主燈等不同的光源通過手機控制,即可直接操作,使用非常方便。
﹀
﹀
﹀
設計師教你挑瓷磚
簡歐風格的家,瓷磚運用的比較多,客廳鋪瓷磚,恢弘大氣;餐廳鋪瓷磚,豪華有格調;臥室用瓷磚搭配地毯,顯得高雅有品位。那么瓷磚究竟該怎么挑選呢?聽聽梵客家裝首席設計師張曉紅怎么說:

瓷磚具有抗震、抗裂、方便清潔等多項優勢,它的防腐、防水、防腐蝕性好,尺寸、顏色多樣化,適合大多數消費者的審美。瓷磚還可以逼真的表現出木、皮、石、磚、布、金屬等多種裝飾材料的紋理和顏色,和各種室內風格搭配。
挑選瓷磚,主要看五點:看,聽,劃,水,量。

看:看外觀,瓷磚色澤要均勻,表面光潔度好,平整度好,周邊規整,圖案完整。觀察硬度,瓷磚以硬度良好、韌性強、不易碎爛為上品。
聽:聽聲音,用硬物輕擊,聲音越清脆,瓷磚的瓷化程度越高,質量越好。如果聲音沉悶,說明是滯濁下品。

劃:用瓷磚的殘片棱角互相劃痕,破損碎片的斷裂處如果細密、硬實、留下了劃痕,則為上品;如果疏松、細軟,甚至成了散落的粉末,說明品質較差。
水:將水滴在瓷磚背面,水散開后,如果瓷磚吸水慢,說明瓷磚密度大,品質為優;如果瓷磚吸水快,說明瓷磚密度稀疏。
量:瓷磚邊長的精確度越高,鋪貼后的效果越好。


“設計師教你挑瓷磚”章節圖片提供:歐神諾瓷磚
最后,一起來認識該案例的設計師——梵客家裝的首席設計師張曉紅,喜歡她的設計或者想預約梵客家裝其他設計師,請點擊原文鏈接,這里還有更多選擇。
聲明:本文由梵客家裝提供,轉載請聲明出處!
讓家一大再大的體驗
已有 86 位業主獲得服務
新用戶專享優惠